The following drawings and designs describe an approach to handling elk. Construction suggestions and operational tips of the system are included. Please note:
- Dimensional pipe shown in the diagrams is 2 3/8 inch drill stem.
- Comparable materials can be substituted provided dimensions are adjusted accordingly.
Construction Guidelines
This ground level system is a series of swinging gate and sliding gate modules arranged in a rectangular shape. The operator works at ground level in the centre of the rectangle. Each combination of swinging gate and sliding gate can be used to hold, separate and move the elk. The swinging gates are used to "sweep" the animals out of the module while maintaining operator safety behind the gate. Figure 1 shows a three dimensional view of a complete facility.

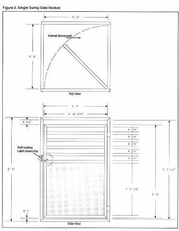
Figure 2 - Single Swing Gate Module
The bottom 4 feet of all swinging and sliding gates is constructed of solid material. Spaced pipe is used for the upper section. The material used for the solid section can be plank or panel. It must be durable to withstand kicking and smooth to prevent injury.
Figure 2 gives suggested construction details of the swinging gate. Note that the gate can be locked in both the open and closed position. The latch is a « inch U-shaped rod which straddles the pipe frame uprights. A self locking tab prevents the latch from being accidentally opened. The construction shown maintains a 5 foot width of clear access for the elk between all steel posts.
Slide Gate

Figure 3 give suggested construction details of the sliding gate. The track is conventional heavy duty door track fastened to the gate frame. Guide bars (one on each side) are attached rigidly to the frame at the top of the gate to prevent the gate from twisting when partially open.
Drawings in figures 2, 3 and 4 are shown as complete stand alone modules. Each module can be bolted, clamped or welded to any adjacent module. With less modular off-site construction and more direct on-site fabrication, the amount of pipe framing can be substantially reduced as adjacent gate units share common framing.
It is recommended that elk should have about 8 feet of unobstructed height inside the chute. However, some producers may want to construct these units inside existing buildings with only 8 foot ceilings. The drawings all show an 8 foot overall height of the steel structure. Clear height inside the chute is therefore 8 feet minus the diameter of the top cross-over pipe.
Double Swing Gates

Variations of the swinging gate module are used within the system. These variations include the corners, double gate units (figure 4) and the in-chute squeeze (Item 2, Figure 5.)
Complete system
The system can be used either inside a building or outside. In either case, the perimeter walls of the rectangle should be relatively solid and a minimum of 8 feet in height. Use narrow spacing to prevent hooves and antlers from being caught and injured. These perimeter walls can be free standing post and plank placed adjacent to the steel modules. The walls of a building can be incorporated into the design.
When a building is being constructed specifically for a low level handling system, recommended ceiling height is 12 feet. This height allows for adequate ventilation and proper lighting.
The corners of the gates and frames are shown with 45 mitred connections using a cut off wheel. If crimped butt joints area used, arrange the joints so the pipes will drain water from rain, snow and condensation.
Figure 5 illustrates one arrangement of the modules that could be considered complete. It is the plan view of Figure 1 with minor changes for placement inside a building.
Staged Construction
If producers start with only a few animals, they may not want to initially commit the money or the time to build a complete system. Figure 6 offers staged construction alternative to eventually have the system shown in Figure 5. The slide and swing gates are the heart of the system. When reducing the number of gates for staged construction, consider the associated reduction in handling effectiveness that will be encountered.
The direction of gate swing and the number swinging gates shown is variable and dependent upon the handling characteristics required by the individual elk producer. Producers must design accordingly to meet their requirements and accommodate any restrictions at the site.
Concrete floors in the chute are not recommended. Poor traction and slipping by the animals occurs. Use a well packed clay floor. If concrete is used, traction materials must be added to the floor inside the chutes.
A padded hydraulic squeeze that can restrain and lift the animal works well to hold the animal for treatment and for removing the velvet antler.
The alley shown as Item 6 in Figure 5 is to facilitate the sorting of animals. Calves can be separated from cows, animals not requiring treatment can be released or animals can be short circuited back through the system ahead of others. This alley adds versatility to the system. Add as many gates as deemed necessary.
The loading chute at one corner is an extension of the handling chute. A swinging gate blocks the chute while allowing operator access to the back of the trailer or truck.
Animals must leave the handling system unobstructed to prevent injury. They should exit into a large pen having no sharp corners, protrusions or obstacles.
For your consideration
The above information does not show all the details necessary to build the system. It is to be used as a guide. On site ingenuity based on cost, materials used and the personal preference will determine the final appearance.
Drawings and designs are based on systems built and operated by John Cameron and Neil Letourneau of Winfield Alberta.